Доставка по всей России!
Емкостное оборудование, газгольдеры, представляет конструктивно стандартный металлический сосуд, используемый для накопления и дозированной раздачи сниженного газа (сокр. – СУГ). Емкостное оборудование относятся к категории сварных металлоконструкций, к которым предъявляются повышенные требования по качеству применяемых в процессе изготовления материалов. На основании требований, указанных в ПБ 09-566-03 готовые сосуды должны соответствовать требованиям технологической среды в вопросах коррозийной стойкости и иметь расчетный срок эксплуатации не менее 20 лет.
Завод Резервуаров и Негабаритных Металлоконструкций предлагает широкий выбор специальных стальных хранилищ для сжиженного газа, изготовленных с учетом особых требований к ТБ.
Разработка проекта, процесс производства, а также практическая эксплуатация емкостей для СУГ строго регламентирована с учетом требований ряда отраслевых стандартов:
|
Параметр |
Документ |
Номер |
|
Общие техусловия |
ГОСТ Р |
52630 |
|
ТБ на объектах, использующих газгольюеры |
ПБ |
12.609.03 |
|
Разработка проекта, производство, передача в пользование. |
03.584.03 |
|
|
Особенности эксплуатации |
03.576.03 |
Каждый сосуд – это цельносварной металлический корпус цилиндрической формы с выпуклыми днищами.
|
Параметр |
Значение |
Примечание |
|
Давление хранящейся смеси, |
1,60 МПа |
Не выше |
|
Температура стенок |
- 60 … + 50°С |
При более низких температурах необходимо использовать доп. устройства для обогрева. |
|
Уровень сейсмической опасности |
≤ 7 баллов |
|
Емкости широко применяются в следующих отраслях народного хозяйства:
Готовые резервуары СУГ, предназначенные для хранения пропана, бутана и пропанобутановой смеси, могут размещаться как над поверхностью грунта, так и под землей. По конструкции баллоны могут быть:
Завод РиНМ осуществляет прямые поставки СУГ, изготовленных по правилам, установленным стандартами, а также по специализированным заказам. Сосуды с внутренним объемом 25 кубометров пользуются повышенным спросом у самых разных категорий пользователей. Готовые изделия имеют следующие основные параметры:
|
Характеристика |
Ед. изм. |
Значение |
Примечание |
|
Предназначение (среда) |
- |
пропанобутановая смесь или иной сжиженный газ |
|
|
V, объем номинальный |
м³ |
25,0 |
|
|
Предельно допустимые параметры наполнения |
% |
До 85 |
|
|
V сосуда внутренний, |
м³ |
21,25 |
|
|
Особенности конструктивного исполнения |
тип |
- одностенный; - двустенный |
|
|
Р в системе |
МПа |
1,60 |
|
|
Р теоретич. |
1,80 |
|
|
|
Р на стадии испытания (пробы) |
2,03 |
|
|
|
Температура эксплуатации, диапазон |
°С |
- 40 … + 45 |
|
|
Материал, используемый для изготовления |
Листовой металл |
09Г2С |
|
|
S, толщина стальной стенки |
мм |
10 – 22,0 |
В зависимости от типа сосуда |
|
Группа аппарата |
|
1 |
ОСТ 26.291.94 |
|
Классификация по степени опасности |
класс |
4 |
ГОСТ 12.1.007.76 |
|
Пожароопасность |
категория |
высокая |
ГОСТ 12.1.004.91 |
|
Взрывоопасность |
группа |
IIa-T3 |
ГОСТ 12,1,001,78 |
|
Наличие антикоррозийной защиты |
Для подземных сосудов |
Подлежит обработке с помощью антикороозийной защиты весьма усиленного типа |
ГОСТ 9.602 |
|
Установленный эксплуатационный ресурс |
лет |
20 |
|
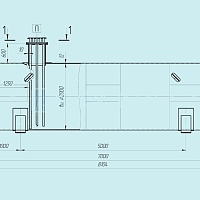
При наземном способе установки
|
Параметр |
Ед. изм |
Значение |
|
D, диаметр |
см |
200,0 |
|
L, длина |
см |
812,0 |
|
H, высота |
см |
232,0 |
|
M, масса одностенного |
т |
5,62 |
|
M, масса двустенного |
т |
10,60 |
|
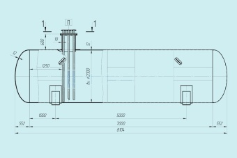
Параметр |
Ед. изм |
Значение |
|
D, диаметр |
см |
200,0 |
|
L, длина |
см |
810,0 |
|
H, высота |
см |
288,0 |
|
M, масса одностенного |
т |
5,62 |
|
M, масса двустенного |
т |
10,60 |
Для обеспечения эффективной работы сосудов, контроля безопасности эксплуатации и выполнения технологических процессов в конструкции емкостного оборудования предусмотрена возможность установки следующих типов штуцеров:
|
Назначение |
Количество |
Øn, mm |
P, МПа |
|
Вход |
1 |
50,0 |
1,6 |
|
выход |
1 |
50,0 |
|
|
Связующий по газовой среде |
1 |
32,0 |
|
|
Под предохранительный клапан |
2 |
М72х2 |
|
|
Уровнемер |
1 |
К2 |
|
|
манометр |
1 |
G3/4 |
|
|
Дренажная система |
1 |
32,0 |
|
|
Люк |
1 |
500,0 |
Современные технологии изготовления, качественное сырье, автоматизация производства и строгий контроль качества обеспечивают емкостному оборудованию, изготавливаемому и поставляемому компанией Завод РиНМ устойчивость к сейсмической активности вплоть до 9 баллов.
Завод Резервуаров и Негабаритных Металлоконструкций предлагает сосуды, емкостью в 25 кубометров для СУГ, изготовленные по типовым проектам. При необходимости, заказчик может внести определенные конструктивные изменения и все они будут учтены в ТЗ на изготовление.
Для подачи заявки на изготовление данного типа емкостного оборудования достаточно сделать всего один телефонный звонок менеджеру компании!

Цены от производителя
Гарантия качества
Комплектация объектов под ключ
Производим монтаж/демонтаж
Оперативная доставка в любой регион
Быстрые сроки поставки,
четкое соблюдение сроков
Персональный подход
Гарантийное обслуживание
Разработка КМД от 2-х
рабочих дней
Составление КП от 15 минут
Подготовим коммерческое предложение
с учетом ваших индивидуальных технических требований
Чтобы избавить Вас от необходимости поиска логистической компании, мы готовы взять на себя работу по осуществлению доставки оборудования на Ваш объект.
Преимущества осуществления доставки при помощи нашей компании:
Свяжитесь с нашим менеджером по телефону или через форму сайта и мы подготовим для Вас расчет.