Резервуары и металлоконструкции
от завода-производителя

Доставка по всей России!

slide-s02

Резервуар вертикальный РВС 1000 м3

Резервуар вертикальный РВС 1000 м³ – это металлическая емкость цилиндрической формы с ровным дном, конусообразной крышей. Рассчитан для хранения жидких продуктов плотностью до 1015 кг/м³ под давлением не превышающем 2 кПа. Применяют в нефтеперерабатывающей сфере, химической индустрии, сельскохозяйственном комплексе. Допускается хранение светлых и темных нефтепродуктов, нефти, воды, пищевой продукции, технологических жидкостей.

 

Наша продукция

Завод Резервуаров и Негабаритных Металлоконструкций реализует резервуар вертикальный РВС 1000 м³ в широком модельном ряде по доступной цене. При изготовлении используют низколегированную, малоуглеродистую, нержавеющую сталь. В стандартном исполнении конструкция имеет следующие размеры:

 

Наименование продукции Рабочий объём, м³ Высота стенки, мм Внутренний диаметр, мм Расчетный вес, кг
РВС-1000 1000 12000 10430 34665

 

Модельный ряд:

  • РВС-1000 – со стационарной крышей без понтона;
  • РВСП-1000 – со стационарной крышей с понтоном;
  • РВСПк-1000 – с поплавковой крышей;
  • Емкость с дополнительной защитой – создана по типу «резервуар внутри другого резервуара».

Завод РиНМ располагает высокоточным оборудованием для производства РВС-1000 различных модификаций. Наши мастера выполнят заказ любой сложности в кратчайшие сроки.

 

Свойства эксплуатации

Резервуар РВС 1000 м³ применяют по нормам ГОСТ 31385-2016, СТО-СА-03-002-2009. Он универсален в эксплуатации благодаря потребительским свойствам:

 

Технические параметры Числовое значение
Плотность рабочей жидкости, кг/м³, не больше 1015
Внутреннее давление, кПа 2
Максимально допустимое давление внутри корпуса, кПа, не больше 5
Вакуум, кПа 0,25
Температура рабочей жидкости, °C от -65 до +260
Сейсмичность района, баллы, не больше 9
Гарантийный срок эксплуатации, лет 5
Общий срок эксплуатации, лет, не меньше 50

 

Технические характеристики изделия зависят от особенностей металлоконструкции, марки стали, защитного покрытия, технического оборудования.

 

Штуцера

Резервуар вертикальный РВС 1000 м³ востребован в различных отраслях промышленности. Для подсоединения коммуникаций к металлическому корпусу приваривают штуцера:

 

Назначение штуцера Диаметр, мм
Технологический люк-лаз 600
Световой люк 500
Ввод, вывод рабочей среды 80
Ввод, вывод теплоносителя 50

 

Резервуары РВС-1000 комплектуют приборами КИПиА, навесным оборудованием. Штуцера для их присоединения рассчитывают индивидуально к каждому изделию.

 

Применение

Резервуар вертикальный стальной РВС 1000 м³ компактен, универсален в применении. Его используют в следующих отраслях:

  • нефтеперерабатывающая промышленность – для хранения нефти, светлых и темных нефтепродуктов;
  • пищевая промышленность – для хранения питьевой воды, сиропов, растительных масел;
  • химическая промышленность – для хранения технологических жидкостей.

Вертикальные емкости на 1000 м³ позволяют хранить достаточный объём воды, необходимый для обеспечения беспрерывного производственного цикла. Можно задействовать для тушения пожаров, заправки пожарной спецтехники.

 

Перекачивают рабочую жидкость с помощью стационарных и передвижных насосов, для этого используют специальное технологическое оборудование.

 

Изготовление доставка и монтаж

В производственных цехах Завода РиНМ нарезают листовой и сортовой прокат, сваривают заготовки. На место монтажа доставляют изделие в разобранном виде.

 

На подготовленную технологическую площадку устанавливают плоское днище. К нему приваривают стенки, ребра жесткости. Устанавливают крышу. После этого монтируют лестницу, технологическую площадку, ограждение. Устанавливают навесное оборудование, приборы КИПиА.

 

Бригада наших специалистов выезжает на место монтажа, выполняет всю работу под ключ. На каждую выполненную операцию выдается соответствующая документация.

 

Завод Резервуаров и Негабаритных Металлоконструкций поставляет резервуары вертикальные РВС 1000 м³ по всей территории РФ, в страны ближнего зарубежья. Продукция сертифицирована, соответствует европейским нормам.

 

Заказать товар можно на сайте, по телефону, электронной почте. В ближайшее время с вами свяжется наш менеджер, бесплатно проконсультирует, рассчитает предварительную стоимость, поможет оформить заявку, предложит удобные формы оплаты, варианты доставки к месту монтажа или ближайшему терминалу транспортной компании. Обращайтесь, мы всегда рады нашим клиентам.

Преимущества

  • Цены от производителя

  • Гарантия качества

  • Комплектация объектов под ключ

  • Производим монтаж/демонтаж

  • Оперативная доставка в любой регион

  • Быстрые сроки поставки,
    четкое соблюдение сроков

  • Персональный подход

  • Гарантийное обслуживание

  • Разработка КМД от 2-х
    рабочих дней

  • Составление КП от 15 минут

Подготовим коммерческое предложение
с учетом ваших индивидуальных технических требований

Скачать опросный лист

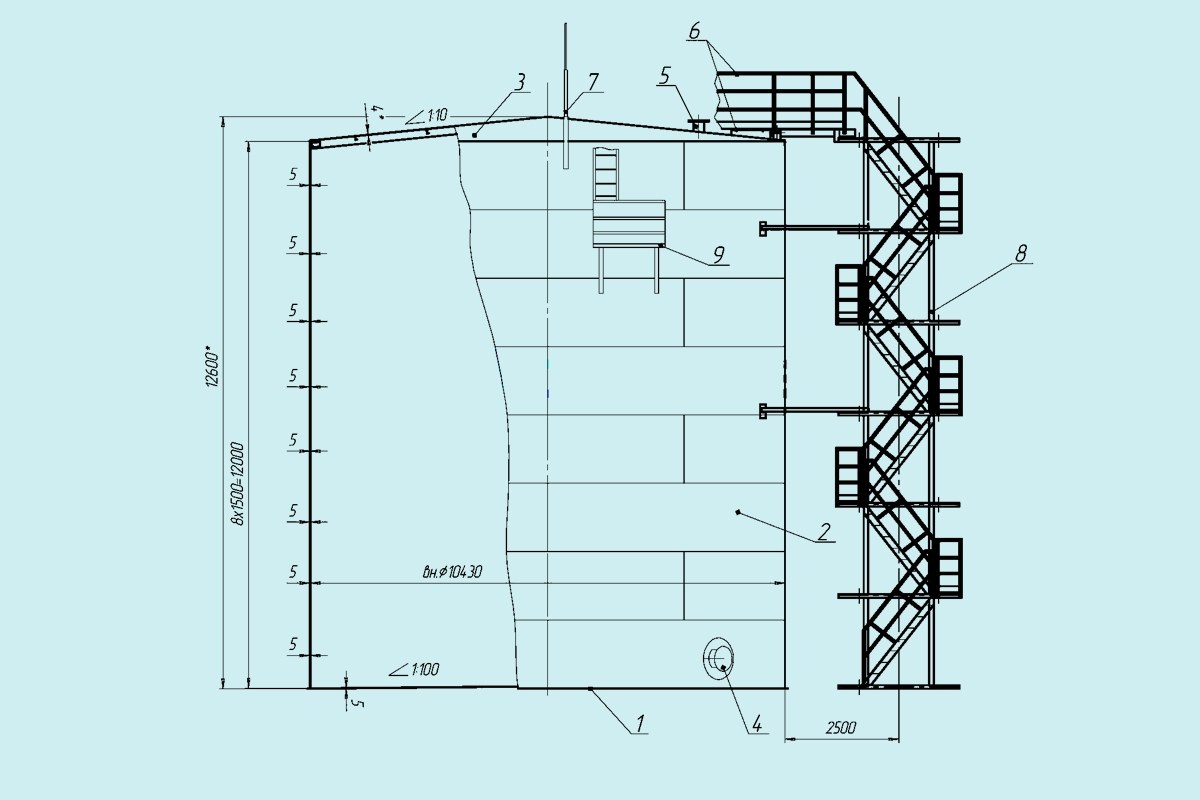
Технические характеристики

1- днище, 2 - стенка, 3 - крыша щитовая, 4 - люки и патрубки, 5 - люки и патрубки, 6 - площадка кольцевая, ограждение, 7 - молниеприемники, 8 - лестница шахтная, 9 - площадка обслуживания пеногенераторов

Чертеж

Чертеж Резервуар вертикальный РВС 1000 м3

Доставка

Чтобы избавить Вас от необходимости поиска логистической компании, мы готовы взять на себя работу по осуществлению доставки оборудования на Ваш объект.

Преимущества осуществления доставки при помощи нашей компании:

  • Работа только с проверенными временем подрядчиками
  • Четкое соблюдение сроков
  • Разумные цены
  • При необходимости, груз можно застраховать
  • Стоимость услуги рассчитывается индивидуально, в зависимости от региона доставки и объема груза.

Свяжитесь с нашим менеджером по телефону или через форму сайта и мы подготовим для Вас расчет.

Скачать опросный лист